- 12099 Berlin • Büro zu mieten
Atelier, Büro, Agentur - Inspirierende Arbeitsumgebung mit spektakuärer Aussicht
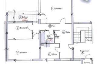
Die 1990 im Dach eines Gründerzeithauses ausgebauten Büroräume wurden vor etwa 10 Jahren unter Verwendung ausgesuchter Materialien modernisiert und geschmackvoll umgestaltet. Das Haus beherbergt unten Wohnungen und Praxen, in den oberen Etagen zwei großzügige Loft-Büros, von denen eines aktuell frei wird. Im anderen mehr anzeigen- Miete / Monat
- € 1.900,-
€ 17,- / m²- Nutzfläche
- 110 m²
- Zimmer
- —
- 12355 Berlin • Einfamilienhaus kaufen
Attraktives Zweifamilienhaus ohne Makler von privat zu verkaufen
Attraktives Zweifamilienhaus ohne Makler von privat zu verkaufen Dieses großzügige Zweifamilienhaus mit insgesamt ca. 175 m² Wohnfläche und 6 Zimmern und 3 Badezimmern befindet sich in einer ruhigen Lage in einer Einfamilienhausgegend im Süd-Osten Berlins. Es befindet sich auf einem 610qm großem Grundstück. Das Haus mehr anzeigen - 10967 Berlin • Wohnung kaufenBerlin - Provisionsfrei: Sanierte und bezugsfreie 2-Zimmer Wohnung im beliebten GraefekiezDiese sanierte und bezugsfreie 2-Zimmer-Wohnung befindet sich im 2. Obergeschoss des Hinterhauses eines gepflegten Mehrfamilienhauses - mitten im begehrten Berliner Stadtteil Kreuzberg, im beliebten Graefekiez. Das Mehrfamilienhaus wurde im Jahr 2000 umfassend saniert und bietet modernen Wohnkomfort in einer zentralen, weitere Infos...
- 13435 Berlin • Einfamilienhaus kaufenBerlin - Grundstück Haus (provisionsfrei) Berlin-WittenauGuten Tag, wir bieten in 13435 Berlin-Wittenau ein 544qm großes Grundstück mit einem freistehenden Einfamilienhaus (Bj. 1931) an. Das Haus war bis 10/2025 bewohnt und wird mit dem Energieträger Gas beheizt. Löwengas hat den Tank gerade mit 1.000l befüllt (55%) womit man gut über weitere Infos...
- 10719 Berlin • Wohnung kaufenBerlin - DG-Maisonette Berlin-Frohnau, große Dachterrasse, provisionsfreiNur von privat an privat, bitte keine Makleranfragen. Ruhig gelegene, helle, moderne und gepflegte Dachgeschoss-Maisonette-ETW im 2. und 3. Endgeschoss in Berlin-Frohnau mit 50qm uneinsehbarer umlaufender Terrasse mit wunderschönem Blick auf viele Bäume. Im Grünen wohnen, weitere Infos...
- Straße 70, 10585 Berlin • Wohnung kaufenBerlin - Eigentumswohnung z.Kauf Richard-Wagner-Str49 10585 BerlinDie Straße wurden 1934 nach den Komponisten Richard Wagner benannt. Das Haus ist ein Altbau mit Stuck, es wurde 1911 gebaut, die Wohnung hat 2 Balkone. Das Bad hat eine Dusche. Die Zimmer wurden mit Holzdielen verlegt. Ich helfe nur zu vermitteln: keine Provision, weitere Infos...
- 10783 Berlin • Wohnung kaufenBerlin - 5 Wohnungen in Schöneberg - Berlin; Paket oder EinzelverkaufACHTUNG: Bitte keine Makleranfragen! Ich biete ein exklusives Paket aus fünf Wohneinheiten in Schönberg — ideal für Kapitalanleger oder Eigennutzer, die Wert auf solide Mieterstrukturen und langfristige Perspektive legen. Objektübersicht -Lage: Schönberg, weitere Infos...
- 10557 Berlin • Wohnung kaufenBerlin - Helle 3-Zi 90m² DG-Whg Terrasse Blick Tiergarten provisionsfreiERSTE REIHE GROSSSTADT - IHR LOGENPLATZ ÜBER BERLINu2028 Mit Blick auf Skyline und Wahrzeichen wohnen Sie mitten im Puls der Stadt - lebendig, verbunden und doch ungestört in Ihrem privaten Rückzugsort. PROVISIONSFREI - DIREKT VOM EIGENTÜMER u2028Nach über 30 Jahren weitere Infos...
- 13465 Berlin • Einfamilienhaus kaufenBerlin - Provisionsfrei! Modernisiertes Raumwunder mit vielfältigen Nutzungs- und GestaltungsmöglichkeitenViel Platz zum Wohnen, Arbeiten und Hobby erwarten Sie, wenn Sie die rd. 285m² Wohn-Nutzfläche des Hauses betreten. Das geräumige Einfamilienhaus wurde ursprünglich als Fertighaus mit einem massiven Keller inkl. Garage (2 Stellplätze) auf einem Pfeifenstilgrundstück errichtet. Anfang der 2000er Jahre wurde die Fassade weitere Infos...
- Straße 12, 13403 Berlin • Haus kaufenBerlin - Grüne Oase mitten in der Stadt in ruhiger SeitenstraßeProvisionsfreier Verkauf eines Reihenendhauses mit nicht einsehbarem gemütlichem Garten wo Kinder gefahrenlos spielen können. Sie werden sich hier wohl fühlen. Ideale Verkehrsanbindung: 2 Minuten zur Autobahn, 250m zur S-Bahn und zum Bus 7 Zimmer, weitere Infos...









