- Startseite
- Sachsen
- Zwickau
- Reinsdorf
- Eigentumswohnungen
6 Eigentumswohnungen in der Gemeinde Reinsdorf
- 08141 Reinsdorf • Wohnung kaufen
Vermietete Eigentumswohnung im Wohnpark Rittergut – Balkon – Tiefgarage – Kapitalanlage
Zum Verkauf steht eine gepflegte Eigentumswohnung im Wohnpark Rittergut in Reinsdorf / Vielau. Die Wohnung befindet sich im 1. Obergeschoss einer ruhigen Wohnanlage und ist derzeit vermietet. Damit eignet sich das Objekt ideal als Kapitalanlage mit laufenden Mieteinnahmen. Das monatliche Hausgeld beträgt aktuell 216 €. - 08141 Reinsdorf • Wohnung kaufenModerne barrierearme ETW mit 8% Rendite - für Eigennutzung oder KapitalanlageWohnung zu kaufen in Reinsdorf mit 101m² und 2 Zimmer um € 110.000,- Kaufpreis. Alle Infos finden Sie direkt beim Inserat.
- Neue Straße 28, 08141 Reinsdorf • Wohnung kaufen
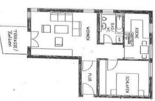
Attraktive Eigentumswohnung mit Terrasse & Fußbodenheizung in Reinsdorf-Vielau - im Verkauf
Die Wohnung eignet sich ideal für Senioren, Singles oder Paare zur Eigennutzung sowie als attraktive Kapitalanlage. *** Um alle Bilder, Innenfotos, Grundrisse und Informationen zu dieser Immobilie sehen zu können, fordern Sie bitte unser umfangreiches Exposé an. Senden Sie uns Ihre Anfrage und Sie erhalten das Exposé mehr anzeigen - 08141 Reinsdorf • Wohnung kaufen9,2 % Rendite: Charmante 3-Zimmer-Wohnung mit Balkon & StellplatzWohnung zu kaufen in Reinsdorf mit 74m² und 3 Zimmer um € 70.000,- Kaufpreis. Alle Infos finden Sie direkt beim Inserat.
- 08141 Reinsdorf • Wohnung kaufen
Extravagantes Wohnen im Erdgeschoss
Stilvolle 3-Zimmer-Erdgeschosswohnung mit privater Sauna Diese außergewöhnliche 3-Zimmer-Wohnung im Erdgeschoss mit ca. 97 m² Wohnfläche richtet sich an Käufer, die Wert auf modernes Wohnen, Komfort und besondere Ausstattungsmerkmale legen. Ein durchdachter Grundriss, klare Gestaltungslinien und hochwertige mehr anzeigen - 08141 Reinsdorf • Wohnung kaufen7,8 % Rendite - Ideal für Kapitalanleger! Charmante 4-Zimmer-Wohnung mit Loggia und AußenstellplatzWohnung zu kaufen in Reinsdorf mit 64m² und 4 Zimmer um € 65.000,- Kaufpreis. Alle Infos finden Sie direkt beim Inserat.
- vergebenGesehen
08141 Reinsdorf • Wohnung kaufenAttraktive Eigentumswohnung mit Terrasse & Fußbodenheizung in Reinsdorf-Vielau - im Verkauf






