11 Günstige Mietwohnungen in der Gemeinde Waren (Müritz)
- 17192 Waren • Wohnung mieten
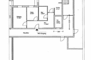
3-Zimmer Wohnung im Herzen von Waren
Willkommen in Ihrer neuen Traumwohnung in Waren (Müritz)! Diese gepflegte 3-Zimmer-Etagenwohnung bietet Ihnen auf ca. 80 m² Wohnfläche ein komfortables und gemütliches Zuhause.Die Wohnung umfasst zwei großzügige Schlafzimmer, von denen aus Sie Zugang zu einem einladenden Balkon haben – genießen Sie hier entspannte mehr anzeigen- Miete / Monat
- € 700,-
€ 8,- / m²- Wohnfläche
- 80 m²
- Zimmer
- 3
- Rosa-Luxemburg-Str., 17192 Waren • Wohnung mietenHelle, ruhige 3-Zi-Wohnung in WarenSüdlage, 2. OG, Aufzug, Küchenecke im Wohnzimmer, vor 1 Jahr komplett neu, innenliegendes Bad mit Wanne, Fußböden Laminatbis auf Bad/Küchenecke. Entfernung zum Zentrum ca. 600m, Supermärkte ca. 100 m, Ärzte/Apotheke im Haus. Erstkontakt für Interessenten über Tel 0172-2525018
- Miete / Monat
- € 500,-
€ 7,- / m²- Wohnfläche
- 66 m²
- Zimmer
- 3









