- Startseite
- Hessen
- Hersfeld-Rotenburg
- Niederaula
- Mietwohnungen
1 Mietwohnungen mit Balkon in der Gemeinde Niederaula
- vergebenGesehen
36272 Niederaula • Wohnung mietenfreundliche , helle 3-zimmer-dg-wohnung, tel.: 0171 8310089
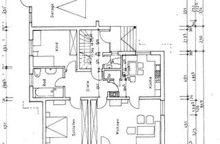
objektbeschreibung: freundliche, helle 3- zimmer-wohnung im neubaugebiet von niederaula, erstklassiger wohnungsschnitt mit großem wohnbereich, großer küche, 2 gleichgroße schlafzimmer, großem badezimmer (wanne und dusche) mit zwei fenstern, sep. gästetoilette mit fenster, eigenem kellerraum, großem parkplatz mehr anzeigen- Miete / Monat
- € 539,-
€ 7,- / m²- Wohnfläche
- 75 m²
- Zimmer
- 3
