- Startseite
- Rheinland-Pfalz
- Ahrweiler
- Sinzig
131 Immobilien in der Gemeinde Sinzig - Seite 3
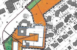
- 53489 Sinzig • Grundstück zu kaufen
Denkmalgeschütztes Anwesen mit Altgebäude & großem Park
Das Anwesen ist derzeit in Privatbesitz und soll aus Altersgründen veräußert werden. Zum Planfoto: Die Grenzen des Anwesens erkennen Sie an der dick schwarz gestrichelten Linie. Das Altgebäude (ca. 500Jahre) vollständig sanierungsbedürftig. Weitere Teile des Grundstücks können kurzfristig Baugenehmigung erhalten. Es mehr anzeigen- Grundfläche
- —
- 53489 Sinzig • Grundstück zu kaufen
Denkmalgeschütztes Anwesen mit Altgebäude & großem Park
Das Anwesen ist derzeit in Privatbesitz und soll aus Altersgründen veräußert werden. Zum Planfoto: Die Grenzen des Anwesens erkennen Sie an der dick schwarz gestrichelten Linie. Das Altgebäude (ca. 500Jahre) vollständig sanierungsbedürftig. Weitere Teile des Grundstücks können kurzfristig Baugenehmigung erhalten. Es mehr anzeigen- Grundfläche
- 18.000 m²
- 53489 Sinzig • Haus kaufenDein Zuhause, deine Freiheit: LivingHaus macht Träume lebendigHaus zu kaufen in Sinzig mit 125m² und 5 Zimmer um € 565.520,- Kaufpreis. Alle Infos finden Sie direkt beim Inserat.
- 53489 Sinzig • Haus kaufenDoppelter Vorteil: Platz für alle & Kostenersparnis durch Eigenleistung.Haus zu kaufen in Sinzig mit 148m² und 6 Zimmer um € 618.540,- Kaufpreis. Alle Infos finden Sie direkt beim Inserat.
- 53489 Sinzig • Haus kaufenSensationelles Design – Wohnen auf höchstem Niveau!Haus zu kaufen in Sinzig mit 150m² und 5 Zimmer um € 597.400,- Kaufpreis. Alle Infos finden Sie direkt beim Inserat.
- 53489 Sinzig • Villa kaufenTraumhafte Stadtvilla auf großzügigem Grundstück noch individuell umplanbarHaus zu kaufen in Sinzig mit 140m² und 5 Zimmer um € 597.400,- Kaufpreis. Alle Infos finden Sie direkt beim Inserat.
- 53489 Sinzig • Haus kaufenIhr individuelles Stadthaus in Sinzig - Gestalten Sie Ihr Traumhaus nach Ihren Wünschen!Haus zu kaufen in Sinzig mit 205m² und 5 Zimmer um € 537.229,- Kaufpreis. Alle Infos finden Sie direkt beim Inserat.
- 53489 Sinzig • Doppelhaushälfte kaufenIhr Traumhaus in Sinzig - Doppelhaushälfte ganz nach Ihren WünschenHaus zu kaufen in Sinzig mit 124m² und 4 Zimmer um € 395.379,- Kaufpreis. Alle Infos finden Sie direkt beim Inserat.
- 53489 Sinzig • Einfamilienhaus kaufenIhr individuelles Einfamilienhaus in Sinzig - Gestalten Sie Ihr Traumhaus nach Ihren Wünschen!Haus zu kaufen in Sinzig mit 142m² und 4 Zimmer um € 386.929,- Kaufpreis. Alle Infos finden Sie direkt beim Inserat.









