- Startseite
- Baden-Württemberg
- Rottweil
- Dunningen
- Doppelhaushälften zu kaufen
1 Doppelhaushälften zu kaufen in der Gemeinde Dunningen
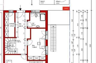
- 78655 Dunningen • Doppelhaushälfte kaufenDunningen - DHH in Dunningen Zentrum Kfw 55Moderne Doppelhaushälfte in Dunningen-Zentrum - Neubau 2025 (KfW 55) Zum Verkauf steht eine moderne massiv gebaute Doppelhaushälfte im Zentrum von Dunningen mit ca. 200 m² Wohnfläche auf einem 304 m² großen Grundstück mit Garten. Das Haus wurde 2025 neu gebaut und überzeugt weitere Infos...
