- Startseite
- Bayern
- Miesbach
- Weyarn
- Mietwohnungen
1 Mietwohnungen mit Balkon in der Gemeinde Weyarn
- vergebenGesehen
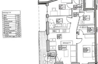
83629 Weyarn • Wohnung mietenStilvolle, neuwertige 3-Zimmer Wohnung mit gehobener Innenausstattung und Loggia in Weyarn
Wohnung zu mieten in Weyarn mit 81m² und 3 Zimmer um € 1.485,- monatliche Miete. Alle Infos finden Sie direkt beim Inserat.- Miete / Monat
- € 1.485,-
€ 18,- / m²- Wohnfläche
- 81 m²
- Zimmer
- 3
- vergebenGesehen
83629 Weyarn • Wohnung mieten2 zkb balk. möbli. oktober-juli 24, dann wahrsch. übernahme mögl.
hard facts: - 2 zimmer küche, bad, balkon in weyarn - in schönem altem bauernhaus mit tollem blick und sehr ruhig - trotz dachgeschoss angenehm kühl (frisch isloliert) - grundfläche wohnung 84 qm (abzüglich schrägen) - grundfläche zimmer 32 und 19 qm - kaltmiete 578 €, warmmiete 893 € ich vermiete meine schöne wohnung mehr anzeigen- Miete / Monat
- € 578,-
€ 8,- / m²- Wohnfläche
- 65 m²
- Zimmer
- 2

