- Startseite
- Bayern
- Kelheim
- Mainburg
- Geschäftslokale
Aktuellste zuerst
Sortierung
- Relevanz
- Aktuellste zuerst
- Älteste zuerst
- Größte zuerst
- Kleinste zuerst
- Günstigste zuerst
- Teuerste zuerst
- Günstigste (pro m²) zuerst
- Teuerste (pro m²) zuerst
- Info zur Sortierung >
1 Geschäftslokale in der Gemeinde Mainburg
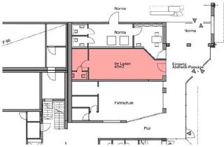
- Abensberger Straße 36a, 84048 Mainburg • Geschäftslokal mietenKleiner Laden im Einkaufs-/Dienstleistungszentrum "Abenstal Passage"Keine Beschreibung
