- Startseite
- Bayern
- Landsberg am Lech
- Hurlach
- Mietwohnungen
Aktuellste zuerst
Sortierung
- Relevanz
- Aktuellste zuerst
- Älteste zuerst
- Größte zuerst
- Kleinste zuerst
- Günstigste zuerst
- Teuerste zuerst
- Günstigste (pro m²) zuerst
- Teuerste (pro m²) zuerst
- Info zur Sortierung >
1 Dachgeschosswohnungen zu mieten in der Gemeinde Hurlach
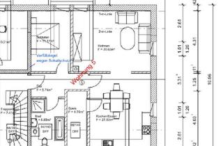
- Iglinger Straße 16a, 86857 Hurlach • Wohnung mieten70 Quadratmeter Dachgeschosswohnung gebaut 2024 zu vermieten
- Dachgeschoss
Wohnung zu mieten in Hurlach mit 70m² und 2 Zimmer um € 990,- monatliche Miete. Alle Infos finden Sie direkt beim Inserat.
