- Startseite
- Bayern
- Lindau (Bodensee)
- Heimenkirch
- Mietwohnungen
1 Dachgeschosswohnungen zu mieten in der Gemeinde Heimenkirch
- vergebenGesehen
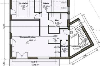
88178 Heimenkirch • Wohnung mieten3 zimmer wohnung 85m² dachgeschoss in heimenkirch zu vermieten
3 zimmer wohnung, 85m2 wohnfläche in heimenkirch zu vermieten. zustand der wohnung ist sehr gepflegt. (siehe fotos) zusätzlich hat die wohnung ein ost- und westbalkon. (siehe fotos) vorhanden sind ein abschließbarer keller, ca. 10m2 und ein waschmaschinen stellplatz im trockenraum. kaltmiete beträgt 750 euro mehr anzeigen- Miete / Monat
- € 750,-
€ 8,- / m²- Wohnfläche
- 85 m²
- Zimmer
- 3
