- Startseite
- Bayern
- Günzburg
- Günzburg
- Eigentumswohnungen
1 Neubauwohnungen zu kaufen in der Gemeinde Günzburg
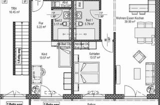
- 89312 Günzburg • Wohnung kaufenGünzburg - 3 Zimmerwohnung Neubau Erstbezug 1. OG Balkon Finanzierung ab 1%Neubauwohnung mit Einbauküche Erstbezug tolle Ausstattung im 1. OG mit großem West Balkon, 2 Bäder ohne Provision für Käufer. Auch als Kapitalanlage sehr gut geeignet. Zinsen für ca. 300.000 Euro ab 1% Zinsen über KfW. Ausstattung - Nachhaltig. Modern. Zukunftssicher. Energie weitere Infos...
