- Startseite
- Bayern
- Augsburg, Landkreis
- Mietwohnungen
17 4-Zimmer Mietwohnungen in Augsburg, Landkreis
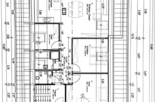
- Grüntenweg, 86853 Langerringen • Wohnung mietenNeuwertige 4-Zimmer Wohnung mit großem Garten, Terrasse und EBK in LangerringenWohnung zu mieten in Langerringen mit 106m² und 4 Zimmer um € 1.450,- monatliche Miete. Alle Infos finden Sie direkt beim Inserat.
- Miete / Monat
- € 1.450,-
€ 13,- / m²- Wohnfläche
- 106 m²
- Zimmer
- 4
- Am Forsthaus, 86368 Gersthofen • Wohnung mietenFrisch sanierte, helle 4 Zimmerwohnung mit Garage und Gartenbenutzung!Wohnung zu mieten in Gersthofen mit 98m² und 4 Zimmer um € 990,- monatliche Miete. Alle Infos finden Sie direkt beim Inserat.
- Miete / Monat
- € 990,-
€ 10,- / m²- Wohnfläche
- 98 m²
- Zimmer
- 4
- Bergstraße 28, 86482 Aystetten • Wohnung mieten**Traumhafte Wohnung mit Gartennutzung in absolut ruhiger und idyllischer Wohngegend**Wohnung zu mieten in Aystetten mit 105m² und 4 Zimmer um € 1.260,- monatliche Miete. Alle Infos finden Sie direkt beim Inserat.
- Miete / Monat
- € 1.260,-
€ 12,- / m²- Wohnfläche
- 105 m²
- Zimmer
- 4









