- Startseite
- Hessen
- Frankfurt am Main
- Gastronomiebetriebe
58 Gastronomiebetriebe in Frankfurt am Main
- 60311 Frankfurt • Gastronomiebetrieb mieten
Shishabar & Restaurant Frankfurt Zentrum – renoviert, 3 Stellplätze, gegen Ablöse
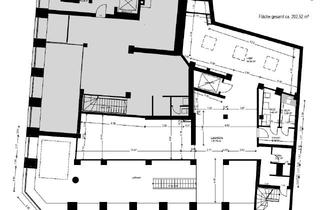
Diskrete Übergabe einer etablierten Shishabar mit RestaurantbetriebZentrale Innenstadtlage Frankfurt am MainIn hervorragender, zentraler Innenstadtlage von Frankfurt am Main wird eine modern ausgestattete und gut etablierte Shishabar mit Restaurant- und Barbetrieb diskret gegen Ablöse angeboten.Der Betrieb verfügt mehr anzeigen- Miete / Monat
- € 3.700,-
—- Nutzfläche
- —
- Zimmer
- 8









