- Startseite
- Bayern
- Landsberg am Lech
- Mietwohnungen
30 2-Zimmer Mietwohnungen in Landsberg am Lech
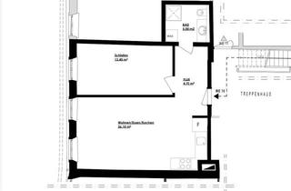
- Bahnhofstraße 132a, 82269 Geltendorf • Wohnung mietenExklusive, neuwertige 2,5-Zimmer-Wohnung mit Balkon in GeltendorfWohnung zu mieten in Geltendorf mit 48m² und 2 Zimmer um € 850,- monatliche Miete. Alle Infos finden Sie direkt beim Inserat.
- Miete / Monat
- € 850,-
€ 17,- / m²- Wohnfläche
- 48 m²
- Zimmer
- 2,5








