- Startseite
- Bayern
- Passau
- Eigentumswohnungen
14 4-Zimmer Eigentumswohnungen in Passau
- 94034 Passau • Wohnung kaufen
Charmante 4-Zimmer-Wohnung in Passau-Grubweg – gepflegt, sonniger Balkon - Wohnung kaufen
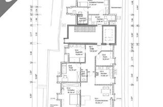
Diese charmante und gut geschnittene Wohnung mit ca. 80 qm befindet sich im 1. Obergeschoss eines gepflegten Mehrfamilienhauses in Passau-Grubweg. Die Einheit liegt über dem Erdgeschoss (Parterre) und bietet eine angenehme Kombination aus durchdachter Raumaufteilung, solider Ausstattung und einem ruhigen, gewachsenen mehr anzeigen - 94032 Passau • Wohnung kaufenPassau - 4.5 Zimmer Wohnung zum Verkauf4-Zimmer-Wohnung in zentraler Innenstadtlage zu verkaufen Zum Verkauf steht eine gepflegte und frisch renovierte 4-Zimmer-Wohnung in bester Innenstadtlage. Die Wohnung überzeugt durch ihre helle, freundliche Raumaufteilung und ihre moderne Ausstattung. Sie wurde umfassend renoviert und verfügt über weitere Infos...
- 94032 Passau • Wohnung kaufenPassau - 4 Zimmer EigentumswohnungDiese Eigentumswohnung kann ohne Maklerprofision erworben werden. Diese frisch renovierte 4 Zimmer - Wohnung (100qm) ist wie gemacht für eine studentische Wohngemeinschaft oder eine Familie. Die Universität sowie das Passauer Stadtzentrum sind in nur ca. 10 Min. per Bus erreichbar - ideal für Studierende/Familie, weitere Infos...
- 94034 Passau • Wohnung kaufenPassau - Wohnung zu VerkaufenZum Verkauf steht ein gepflegte 3 größere Zimmer und ein kleinen Zimmer in traumhafter Lage von Passau -hals dort, wo andere spazieren gehen und an der Ilz in Natur genießen. Hier vereinen sich Ruhe, Erholung und stadtNähe auf einzigartig Weise. Die Wohnung ist zur Zeit vermietet als Wohngemeinschaft. weitere Infos...
- 94032 Innstadt • Wohnung kaufenWohnen mit Postkartenblick: 4 Zimmer in Passaus Innstadt mit AltstadtpanoramaWohnung zu kaufen in Innstadt mit 90m² und 4 Zimmer um € 269.000,- Kaufpreis. Alle Infos finden Sie direkt beim Inserat.
- 94034 Grubweg • Wohnung kaufenProvisionsfrei! Frisch sanierte 4-Zimmer-Wohnung mit DonaublickWohnung zu kaufen in Grubweg mit 80m² und 4 Zimmer um € 299.000,- Kaufpreis. Alle Infos finden Sie direkt beim Inserat.
- 94032 Altstadt • Wohnung kaufenOrtspitze Passau – Zwei Eigentumswohnungen zum Entkernen, Sanieren und Ausbauen mit freiem InnblickWohnung zu kaufen in Altstadt mit 152m² und 4 Zimmer um € 399.000,- Kaufpreis. Alle Infos finden Sie direkt beim Inserat.
- 94032 Innstadt • Wohnung kaufen4-Zimmer-Wohnung in der Innstadt-Passau mit beeindruckendem Blick auf die Passauer AltstadtWohnung zu kaufen in Innstadt mit 109m² und 4 Zimmer um € 320.000,- Kaufpreis. Alle Infos finden Sie direkt beim Inserat.
- 94034 Grubweg • Wohnung kaufenFast wie ein eigenes Haus! 4-Zimmer-Maisonettewohnung mit großzügigen Garten in Passau-GrubwegWohnung zu kaufen in Grubweg mit 149m² und 4 Zimmer um € 259.000,- Kaufpreis. Alle Infos finden Sie direkt beim Inserat.
- 94036 Heining • Wohnung kaufenAufgepaßt: neuwertige 4-Zimmer-Wohnung mit Gartenanteil in PA-NeustiftWohnung zu kaufen in Heining mit 119m² und 4 Zimmer um € 485.000,- Kaufpreis. Alle Infos finden Sie direkt beim Inserat.









