- 79802 Dettighofen • Doppelhaushälfte kaufen
Doppelhaushälfte mit viel Potential
Alle Angaben nach bestem Wissen. Irrtum und Zwischenverkauf vorbehalten. Dem Käufer gegenüber entsteht keine Maklerprovision. Dieses Exposé ist eine Vorinformation, als Rechtsgrundlage gilt allein der notariell abgeschlossene Kaufvertrag. Entdecken Sie Ihr neues Zuhause ni Detighofen! Zum Verkauf steht eine charmante mehr anzeigen - 79865 Grafenhausen • Haus kaufenGrafenhausen - Schmuckstück zu verkaufenWir bieten dieses Schmuckstück zum Verkauf an. Das EFH wurde im Jahr 2018 erbaut. Auf 280m² bietet es über 2 Etagen 7 Zimmer, 2 GästeWC und ein großes komfortables helles Badezimmer. Weiter verfügt es über einen großen Wohn und Essbereich mit offener Küche und Zugang zur weitere Infos...
- 79761 Waldshut-Tiengen • Einfamilienhaus kaufenWaldshut-Tiengen - Gesund wohnen: ökologisches Einfamilienhaus am Waldrand von WaldsVor 15 Jahren habe ich mir am Südhang von Waldshut mein Traumhaus erbauen lassen. Nun zieht es mich zurück in meine Heimat im Norden. Deshalb steht dieses Haus über den Dächern der Stadt nach einer glücklichen Zeit zum Verkauf...Das Haus bietet eine reine Wohnfläche von 122, weitere Infos...
- 79780 Stühlingen • Mehrfamilienhaus kaufenStühlingen - Haus und baugrunstückMehrfamilienhaus mit 5 Wohnungen - 370 m² Wohnfläche - großes Grundstück - Ausbaupotenzial u2e3b Beschreibung: Zum Verkauf steht ein attraktives Mehrfamilienhaus in 79780 Stühlingen, weitere Infos...
- 79780 Stühlingen • Haus kaufenNeubau in bester LageHaus zu kaufen in Stühlingen mit 136m² und 5 Zimmer um € 359.120,- Kaufpreis. Alle Infos finden Sie direkt beim Inserat.
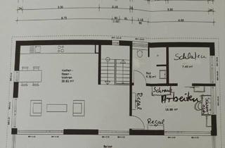
- 79802 Dettighofen • Doppelhaushälfte kaufenDoppelhaushälfte mit viel PotentialHaus zu kaufen in Dettighofen mit 178m² und 8 Zimmer um € 470.000,- Kaufpreis. Alle Infos finden Sie direkt beim Inserat.
- 79736 Rickenbach • Haus kaufenRickenbach - 9-Familienhaus in 79736 Rickenbach - KapitalanlageVerkauft wird ein gepflegtes 9 Familienhaus in Rickenbach. Alle Wohnungen verfügen über einen Balkon oder Terrasse oder Freisitz. Die Hausfassade wurde 2023 neu gestrichen, inklusive Holzwerk, Fenster und Balkonanlage. Das Haus wurde 2024 erneuert mit: Solarmodulen, weitere Infos...
- 79664 Wehr • Haus kaufenIdeale für 2 Baupartner, Familien od. Freunde, modernes und kostengünstiges bauen!Haus zu kaufen in Wehr mit 210m² und 6 Zimmer um € 499.680,- Kaufpreis. Alle Infos finden Sie direkt beim Inserat.
- 79664 Wehr • Haus kaufenIdeale für 2 Baupartner, Familien od. Freunde, modernes und kostengünstiges bauen!Haus zu kaufen in Wehr mit 227m² und 8 Zimmer um € 554.440,- Kaufpreis. Alle Infos finden Sie direkt beim Inserat.
- 79664 Wehr • Haus kaufenBauen mit Vertrauen: Die Zukunft für Ihre FamilieHaus zu kaufen in Wehr mit 134m² und 4 Zimmer um € 779.390,- Kaufpreis. Alle Infos finden Sie direkt beim Inserat.









