- 64354 Reinheim • Praxen mieten
Praxisräume im Dachgeschoss des Ärztezentrums
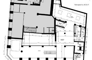
Die Räumlichkeiten befinden sich im Dachgeschoss des Ärztezentrums in der Darmstädter Straße 1 und bieten ein vielfältiges und belebtes, aber dennoch ruhiges Arbeitsumfeld für zukünftige Mieter. In der Vergangenheit waren hier Kinderpsychologische-, Logopädische- und Kunsttherapeutische Praxen untergebracht. Wir mehr anzeigen- Miete / Monat
- € 650,-
—- Nutzfläche
- —
- Zimmer
- —









