- 48712 Gescher • Haus kaufenAnlageobjekt mit Historie & Perspektive: Top saniertes Wohn- und Geschäftshaus im Herzen von GescherHaus zu kaufen in Gescher mit 268m² und 8 Zimmer um € 500.000,- Kaufpreis. Alle Infos finden Sie direkt beim Inserat.
- 48712 Gescher • AnlageobjektAnlageobjekt mit Historie & Perspektive: Top saniertes Wohn- und Geschäftshaus im Herzen von GescherKeine Beschreibung
- Nutzfläche
- —
- 48712 Gescher • Haus kaufenGescher: Ein Stück Geschichte und wundervoll gelegen!Haus zu kaufen in Gescher mit 250m² und 10 Zimmer um € 479.000,- Kaufpreis. Alle Infos finden Sie direkt beim Inserat.
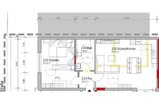
- 48712 Gescher • Wohnung kaufenGescher - Eigentumswohnung Kernsaniert energieeffizientObjektbeschreibung: Diese wunderschöne, energieeffiziente Wohnung (KfW 55 EE Standard) befindet sich in einem vollständig sanierten Haus und bietet modernen Wohnkomfort auf ca. 69,6 m². Der Grundriss ist offen und großzügig gestaltet: •Wohn-/Essbereich mit Küche: 37, weitere Infos...
- 48712 Gescher • AnlageobjektZukunftssichere Geldanlage: Modernes Mehrfamilienhaus mit nachhaltigem WertsteigerungspotenziaKeine Beschreibung
- Nutzfläche
- —
- Eichenweg, 48712 Gescher • Wohnung mietenModerne 2-Zimmer-EG-Wohnung mit gehobener Innenausstattung mit Terrasse/Garten in GescherWohnung zu mieten in Gescher mit 72m² und 2 Zimmer um € 756,- monatliche Miete. Alle Infos finden Sie direkt beim Inserat.
- Miete / Monat
- € 756,-
€ 10,- / m²- Wohnfläche
- 72 m²
- Zimmer
- 2









