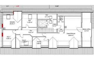
- Spechtweg, 63820 Elsenfeld • Wohnung mietenElsenfeld - Exklusive 4-Zi-Traumwohnung, 130 m², EBK, ruhig, zentral, Balkon, ab 1.3.26 freiHier wartet ein superschönes Mietobjekt auf ein anspruchsvolles Paar oder kleine Familie. Zentral gelegen und trotzdem eine Oase der Ruhe mit Sicht auf den wunderschönen Spessart und Odenwald. Nette Ausflugslokale laden im nahe gelegenen Wald ein. Walken, weitere Infos...
- Miete / Monat
- € 1.290,-
€ 9,- / m²- Wohnfläche
- 130 m²
- Zimmer
- 4
- Spechtweg, 63820 Elsenfeld • Wohnung mietenExklusive 4-Zimmer Traumwohnung, 130 m², EBK, Balkon, ruhig, zentralWohnung zu mieten in Elsenfeld mit 130m² und 4 Zimmer um € 1.290,- monatliche Miete. Alle Infos finden Sie direkt beim Inserat.
- Miete / Monat
- € 1.290,-
€ 9,- / m²- Wohnfläche
- 130 m²
- Zimmer
- 4
- 63834 Sulzbach • Wohnung mietenNeubau-Highlight in Sulzbach am Main: 4-Zimmer-EG-Wohnung mit Garten *Weitere auf Anfrage verfügbar*Wohnung zu mieten in Sulzbach am Main mit 111m² und 4 Zimmer um € 1.690,- monatliche Miete. Alle Infos finden Sie direkt beim Inserat.
- Miete / Monat
- € 1.690,-
€ 15,- / m²- Wohnfläche
- 111 m²
- Zimmer
- 4









