- Startseite
- Sachsen
- Zwickau
- Eigentumswohnungen
133 3-Zimmer Eigentumswohnungen in Zwickau
- 08412 Werdau • Wohnung kaufen
3-Zimmer-Wohnung - provisionsfrei
Diese Maisonette-Wohnung mit der Nummer 8 erstreckt sich über das 1. und 2. Obergeschoss und bietet eine Wohnfläche von 86 m². Sie besteht aus einem Flur, zwei Schlafzimmern, einem Bad/WC, einer Küche und einem Wohnzimmer. Zudem gehört ein Abstellraum im Treppenhaus sowie ein Kellerraum zur Wohnung. Das genaue Baujahr mehr anzeigen - 08058 Zwickau • Wohnung kaufenZwickau - RESERVIERT 3-Raum ETW mit Balkon, Tageslichtbad und EBKKompakte 3-Raum Wohnung bezugsfrei. Die Wohnung kann leer oder vermietet übergeben werden. Erzielbare Miete ca. 4.700 € jährlich mit Vermietungsgarantie. mit Balkon, Tageslichtbad und EBK Leipziger Str. 91 PROVISIONSFREI Anzeige vom 02.03.2026
- Achterbahn 20, 08393 Meerane • Wohnung kaufen3-Raumwohnung im 1.OG - vermietet !Wohnung zu kaufen in Meerane mit 69m² und 3 Zimmer um € 46.000,- Kaufpreis. Alle Infos finden Sie direkt beim Inserat.
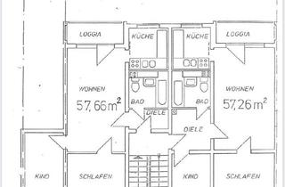
- 08058 Zwickau • Wohnung kaufenZwickau - ProvisionsfreiProvisionsfrei, Eigentumswohnung in Zwickau-Mosel, VW-Nähe, 4. Etage rechts, 57,66 m² Wohnfläche, schöne Aussicht bis ins Erzgebirge, Balkon, Bad, Wasserleitungen und Heizung saniert, in allen anderen Bereichen Sanierung erforderlich, weitere Infos...
- 08134 Wildenfels • Wohnung kaufenWildenfels - Wohnen im Grünen - mit Komfort, Ruhe und viel Liebe zum DetailDiese charmante, renovierte Wohnung liegt mitten im Grünen von Langenweißbach, im idyllischen Ortsteil Langenbach - ein perfekter Rückzugsort für alle, die naturnah und zugleich gut angebunden wohnen möchten. Im 2. Obergeschoss eines gepflegten Mehrfamilienhauses erwartet Sie ein weitere Infos...
- 09212 Limbach-Oberfrohna • Wohnung kaufenLimbach-Oberfrohna - Attraktive 3-Zimmer-Eigentumswohnung mit Balkon und Garage! Ideal für Kapitalanleger!Zum Verkauf steht eine gepflegte 3-Zimmer-Eigentumswohnung im Erdgeschoss eines ansprechenden Mehrfamilienhauses aus dem Baujahr 1993. Das Mehrfamilienhaus befindet sich in einem ruhigen, angenehm gewachsenen Wohnumfeld von Limbach-Oberfrohna und ist insgesamt in einem sehr guten Allgemeinzustand. Die Wohnung weitere Infos...
- 08066 Zwickau • Wohnung kaufenZwickau - Verkaufe meine vermietete 3 Raumwohnung75 qmmit PKW StellplatzAchtung :Makler unerwünscht,bitte nicht melden danke .. Verkaufe meine 3 Raumwohnung ,direkt in Zwickau , nicht weit von Zentrum entfernt, mit ca .75 qm ,ist mehrere Jahren schon vermietet , ein PKW Stellplatz gehört auch dazu , weitere Infos...
- Agricolastraße, 08060 Marienthal • Wohnung kaufen3-Zimmer-Wohnung - provisionsfreiWohnung zu kaufen in Marienthal Ost mit 50m² und 3 Zimmer um € 29.000,- Kaufpreis. Alle Infos finden Sie direkt beim Inserat.
- Agricolastraße, 08060 Marienthal • Wohnung kaufen3-Zimmer-Wohnung mit Balkon - provisionsfreiWohnung zu kaufen in Marienthal Ost mit 68m² und 3 Zimmer um € 27.000,- Kaufpreis. Alle Infos finden Sie direkt beim Inserat.
- 09355 Gersdorf • Wohnung kaufenTop ausgestattete 3 Zimmer Wohnung in Gersdorf zu verkaufen. 49880 € - 59 m² - 3.0 Zi.Wohnung zu kaufen in Gersdorf mit 59m² und 3 Zimmer um € 49.880,- Kaufpreis. Alle Infos finden Sie direkt beim Inserat.









