- 28876 Oyten • Haus kaufenWohnen auf einer Ebene - Bungalow mit einzigartigem Stellplatzangebot auf großem GrundstückHaus zu kaufen in Oyten mit 219m² und 1 Zimmer um € 820.000,- Kaufpreis. Alle Infos finden Sie direkt beim Inserat.
- 28876 Oyten • Einfamilienhaus kaufenOyten - Perfektes Wohnen für Ihre Familie nahe dem Behlingsee! Gemütliches Einfamilienhaus mit großem Garten und Garage!Das gepflegte Einfamilienhaus bietet Platz für eine kleine Familie. Nur ein paar Schritte durch den Vorgarten und einige Stufen empor gelangen Sie zum Hauseingang. Vom Flur sind alle Räume erreichbar, außer die Küche, diese ist vom Esszimmer begehbar. Im Hauptteil des Hauses befinden sich das Wohn- und das Esszimmer sowie weitere Infos...
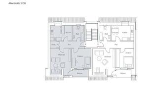
- 28876 Oyten • Wohnung kaufenOyten - Drei Zimmer WohnungHier bitte ich ein drei Zimmer Wohnung ab sofort frei die Wohnung muss renoviert werden Wir können auch die Wohnung komplett neu streichen sie können auch gerne ein Besichtigung Termin vereinbaren bitte bei fragen schreiben Sie mir einfach Anzeige vom 03.02.2026
- 28876 Oyten • Einfamilienhaus kaufen
Einfamilienhaus in 28876 Oyten, Feldstr.
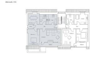
Einfamilienhaus, Baujahr: ca. 2006, 1 Etage(n), Dachgeschoß ausgebaut, Wohnfläche: 121m², Wintergarten, mit Gartenhaus - 28876 Oyten • Haus kaufenOyten - Oyten-Zentrum Traumhaus provisionsfreiDiese außergewöhnliche Immobilie bietet jeglichen Komfort und Luxus den sich ein Eigentümer wünschen kann. Großzügigkeit, perfekte Raumaufteilung, exklusive Ausstattung, hochwertig verbaute Materialien mit Liebe zum Detail. Diverse Komfortzonen sowie modernste Haustechnik machen diese Immobilie zu etwas ganz BESONDEREM . Vom weitere Infos...









